Дом-баня 4.2х6: Освой участок. Отдыхай. Принимай гостей.
· Площадь застройки: 25.2 м².
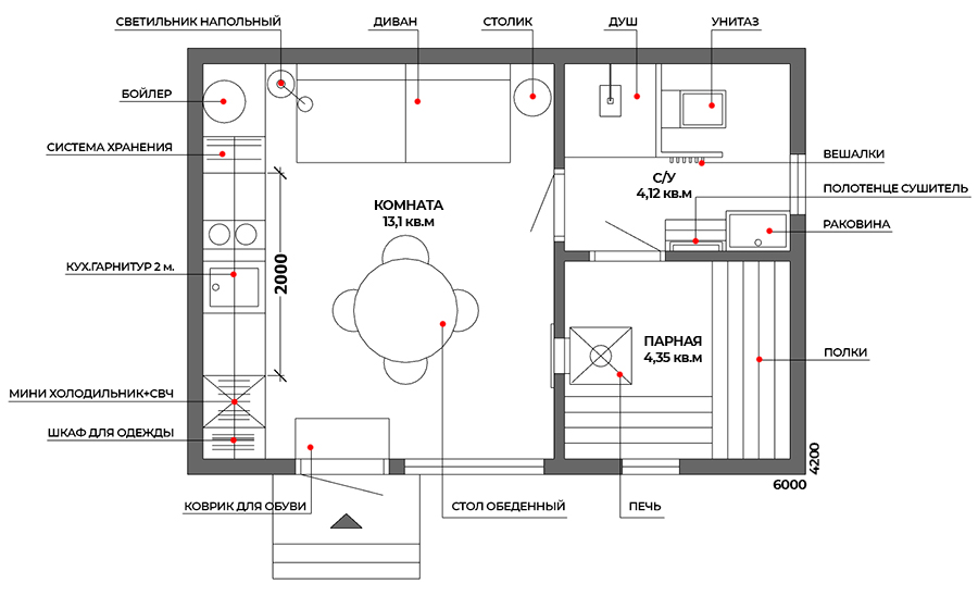
· Планировка (3 помещения):
· Комната отдыха/жилая зона: 13.1 м² — место для отдыха и посиделок, а в будущем станет уютной спальней для ваших гостей.
· Парная: 4.35 м² — эффективная и комфортная баня.
· Санузел/помывочная: 4.12 м² — гигиена и удобство.

· Конструктив:
· Каркас из доски 50х150 мм.
· Утепление 150 мм (стены, пол, потолок) для всесезонного использования.
· Высота потолков 2.35 м.
· Двускатная кровля с уклоном 15°
Строительство небольшого дома-бани на участке, это выгодное и умное решение!
1. Старт без ожидания: Постройте это сооружение в первую очередь, чтобы иметь надежную базу на участке для отдыха, ночевки и хранения инструмента.
2. Комфорт здесь и сейчас: Вам не придется жить в палатке или каждый раз уезжать. После работы на участке вас ждет собственная баня, теплая комната и санузел.
3. Экономия бюджета: Значительно дешевле и быстрее, чем сразу возводить большой дом. Позволяет распределять финансы и вести строительство основного дома без спешки.
4. Гостевая зона в будущем: После постройки основного коттеджа, это строение превратится в автономную банно-гостевую зону, ценность которой только возрастет.
5. Всесезонность и энергоэффективность: Серьезное утепление в 150 мм позволяет протапливать баню и поддерживать плюсовую температуру в межсезонье и зимой, экономя на обогреве.
6. Проверенная конструкция: Классический каркас и двускатная крыша — простые, надежные и проверенные решения, оптимальные для самостоятельного строительства или с помощью рабочего.
Ориентировочное время сборки одним человеком 4-5 дней, двумя 2-3 дня.
Чертежи понятные и иллюстрированные в цветовой гамме, что упрощает и ускоряет строительство в разы. На каждой странице с каркасом количество и распил пиломатериала.





СТОИМОСТЬ ЧЕРТЕЖЕЙ - 1500 руб. (27 стр., PDF)
ДЛЯ ЗАКАЗА:
1. Напишите письмо на diyroom@bk.ru
2. Тема: <<Чертежи дома-бани 4.2х6 м>>
В ответном письме вышлем реквизиты для оплаты по СБП |